Property Type
House, House
Parking
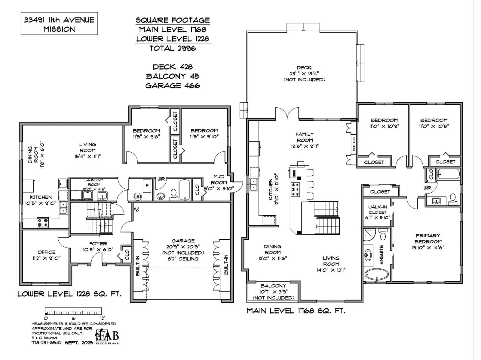
Garage: Yes, 4 parking
MLS #
R3054358
Size
2996 sqft
Basement
Finished, Full (Finished)
Listed on
-
Lot size
-
Tax
-
Days on Market
-
Year Built
-
Maintenance Fee
-