29
$539,900 Sale
Listed 1 hour
307 LINWOOD AVENUE
· 2+2
· 1.0
· 4
· 700 - 1100
Key Facts
Key facts for 307 LINWOOD AVENUE
Property Type
House, House
Parking
Garage: No, 4 parking
MLS #
S12443028
Size
700 - 1100 sqft
Basement
Finished, Full (Finished)
Listed on
-
Lot size
-
Tax
-
Days on Market
-
Year Built
-
Maintenance Fee
-
Description
Great opportunity for first-time buyers or those looking to downsize! This charming 2+2 bedroom home sits on a beautiful corner lot surrounded by mature cedars, offering both privacy and curb appeal. Inside, you'll find a spacious living room with modern touches throughout and a bright, open layout ...ideal for everyday living. The fully finished basement features brand new carpet, a large recreation room, and two additional bedrooms perfect for guests, a home office, or extra family space. Centrally located just minutes from Soldiers Memorial Hospital and the downtown core, and within walking distance to McKinnell Square Park and a variety of amenities, this home combines convenience with comfort. Add in low property taxes, and this move-in-ready gem is one you wont want to miss - quick closing available! (id:10452)
Similar Properties (No results)
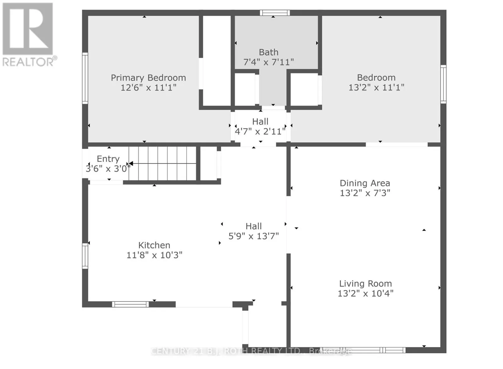
Room Types
Bedroom
-
Dimensions 3.08 m x 2.71 m
89.84 sqft
Bedroom
-
Dimensions 4.02 m x 3.38 m
146.26 sqft
Bedroom
-
Dimensions 5.05 m x 3.1 m
168.51 sqft
Listing courtesy of: CENTURY 21 B.J. ROTH REALTY LTD.
This REALTOR.ca listing content is owned and licensed by REALTOR® members of The Canadian Real Estate Association.